TROLDE

 

Nyhedskalender

14. maj 2019: Der er sket en masse indvendig og på ydervæggene .

14. januar 2019: Tag - Nord og øst er færdig.

11.13. januar 2019: Indvendig - Isolering af loft.

7.-11. januar 2019: Tag - tagrende og listedækning.

5.-6. januar 2019: Indvendig - ventilation og isolering på loft.

18.-21. december 2018: Tag - listedækning er i gang.

15.-16. december 2018: Indvendig - isolering af ydervægge.

8.-9. december 2018: Indvendig - isolering af ydervægge.

2.-9. december 2018: Ydervægge - lister, musestop og víndfatninger vinduer og døre.

Forberedelse

15.-17. november 2017

Så fik vi endelig byggetilladelse. Vi har måttet vente yderligere 4 uger, da vores hus er placeret indenfor en fortidsmindebeskyttelseslinje. Vi har en fredet gravhøj som nabo. Det betyder at Vestsjællands museum skal overvåge udgravning af fundament og kloak. Vi kontakter snarest Vestsjællands museum for at træffe aftale om hvordan udgravningen kan overvåges. Aftalen er på plads og byggeriet kan påbegyndes.

13. oktober 2017

Byggetilladelsen er trukket tilbage på grund af fortidsmindebeskyttelseslinjen. Det positive er at vi med det samme har fået dispensation til at opføre huset og placere septiktanken inden for det anviste område. Men dispensationen skal sendes i høring med en høringsfrist på 4 uger.

11. oktober 2017

Har netop opdaget at hele vores sommerhusgrund ligger indenfor en fortidsmindebeskyttelseslinje. Det kom frem i forbindelse med ansøgning fra Rørvig VVS om godkendelse af septiktank. Har kontaktet kommunen for at få at vide hvilken betydning dette har.

9. oktober 2017

Vi har modtaget en byggetilladelse. Jeg er vildt imponeret over sagsbehandlingstiden. Så skal vi bare i gang. Rørvig VVS er kontaktet for at de kan søge godkendelse til septiktank.

4. oktober 2017

Ansøgning om byggetilladelse er uploadet i Byg og Miljø, som er det system der anvendes til at styre byggeprojektet i forhold til Odsherred kommune. Ansøgningen er sendt som en STRAKS ansøgning, det betyder i princippet at jeg selv har undersøgt alle relevante forhold i henhold til godkendelsen.

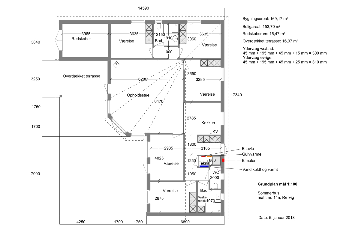
Der er indsendt tegninger som er i henhold til vores helt eget design.

 

 

 

 

 

Opdateret 21.05.2023